プロジェクトの詳細

建設予定地

住所

建設予定地の住所はこちらです。

住所 : 〒966-0501 福島県 耶麻郡 北塩原村 大字檜原 字楢木平原1048−33
( フクシマ・ケン ヤマ・グン キタシオバラ・ムラ オオアザ・ヒバラ アザ・ナラノキダイラハラ と読みます。)

福島県は浜通り、中通り、会津の三つの地方に分かれます。裏磐梯一法庵は、会津地方にあります。会津には有名な磐梯山があり、その北側の地方が「裏磐梯(うらばんだい)」と呼ばれます。1888年、磐梯山が噴火したとき沢山の湖沼が生まれました。その中の最大の湖が檜原湖(ひばらこ)です。檜原湖の北に「早稲沢集落」があります。その集落の東に延びる村道が、水源地の森に入る手前に、裏磐梯一法庵があります。磐梯朝日国立公園の中です。

電話 : まだ固定電話はありません。電話連絡は、鎌倉の一法庵までお願いします。郵便なども、しばらくは鎌倉一法庵までお送りください。下の問い合わせ先を、参考にしてください。

地図 :
・赤いピンのアイコンで示されている位置が、裏磐梯一法庵の建設予定地です。
・地図を拡大または縮小する場合、右下の「+」、「-」の記号をクリックしてください。
・左上の「拡大地図を表示」をクリックすると別ウィンドウが開き、現地周辺の地図を確認できます。是非、「航空写真」のレイヤーでご覧ください。周辺の自然環境の様子がわかります。


赤いピンの位置が裏磐梯一法庵の建設予定地です。東北地方の南部。太平洋からも日本海からも等距離です。東京から近からず、遠からずの距離です。


写真

裏磐梯一法庵周辺

画像をクリックすると拡大できます(拡大した画像をクリックするとさらに拡大できます。)。

上の左 裏磐梯一法庵のヒナ型(その後変更) 上の右 新緑の季節(6月)
中の左 欅の向こうは畑(8月) 中の右 雪に埋もれた前の所有者の家(2月)
下の左 草刈り作務(11月) 下の右 森からの村道は東から西へ(10月)

裏磐梯一法庵の四季

以下の画像をクリックすると、​Googleフォト共有アルバム「​裏磐梯一法庵の四季​」​が開きます。 アルバム内の写真のどれかクリックすると画像が拡大され、パソコンの左右キーで順番に写真を閲覧できます。

ドローンの映像

裏磐梯一法庵周辺をドローンから撮影した映像です。

動画は再生リストになっていて、一つの動画の再生が終わると自動的に次の動画が再生されます。
(右上のをクリックすると再生する動画を選べます。)

こちらをクリックすると、別ウインドウで再生リストが開きます。

設計図

3D 完成予想図(外観パース)

製作:株式会社アレイト

風景写真にCGパースをはめこみました。屋根や外壁は使用予定のガルバリウム、金属サイディングの色、質感を再現しています。

一応の完成予想図ですが、建物はかなり本物に近いですが、周りの雰囲気は少し違います。リアルに建物が完成するまでお待ちください。そのとき、ホンモノの裏磐梯一法庵に出逢えます。

画像をクリックすると拡大されます。

東南側

北西側

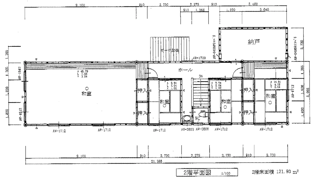
平面図、立面図

設計:前田博史一級建築士事務所

画像をクリックすると拡大され、パソコンの左右キーで順番に画像を閲覧できます(拡大した画像をクリックするとさらに拡大できます。)。

2月1日の第1回設計会議

一法庵として十数年間、毎月接心をしてきたので、多くのひとが滞在する道場にはどういう設備が必要なのかは共通理解がありました。その上で、建設予定地に立ったとき、自分たちの内部に自然と「裏磐梯一法庵」の建物が姿を現してきました。

今年の1月からは一法庵サンガ内で、道場の具体的な間取りの検討を進めました。その原案を2月1日に、前田博史一級建築士(右手前のかた)に提出しました。その後、前田一級建築士による適切な修正を経て、正式な設計図が出来上がりました。国立公園の中なので自然公園法による厳しい建築規制もあるのですが、既に建築許可も下りています。いつでも、建築工事がスタートできます。

<目標>
太陽と雪に素直な、耐震・高気密・高断熱・通気・透湿の家。
つまり、陽当たりがよく、地震に強く、冬暖かく、夏涼しく、換気がよく、適度な湿度で、四季の移り変わりを楽しめ、健康な生活を送れる道場を目指します。

サグラダ・ファミリアとは?

スペインバルセロナの世界遺産サグラダ・ファミリアは非常に有名ですが、NHKが素晴らしい番組を制作しています。NHKオンデマンドで見られます。会員でなくても単品だけ(220円)を購入できますので、まずはこの番組をご覧ください。日本人の彫刻家外尾悦郎さんの目を通して、サグラダ・ファミリアのなかへ、ガウディの中へ入って行けます。
サグラダ・ファミリア~世界一の塔に込めた希望~

サグラダ・ファミリアは、1882年の着工の時は完成までに300年かかると言われたそうですが、どうやらその半分の期間で完成しそうだと報道にありますね。
約140年、未完成のサグラダ・ファミリア。なぜそんなに時間が?

◎建設に時間がかかっている主な理由
・そもそも設計が複雑だから
・設計図やスケッチの多くが焼失したから
・建設の資金を寄付に頼っているから

◎これでも工期は短くなっている!
・コンピューターや3Dプリンターを用いる設計技術が導入された
・コンクリートを使うなど、近代的な建設方法を導入した
・オリンピックにより知名度が上がり、多額の寄付が集まるようになった

サグラダ・ファミリアは、民間カトリック団体「サン・ホセ教会」が贖罪教会(信者の喜捨により建設する教会)として計画しました。初めは寄付も十分集まらず、資金難のために工事がなかなか進まなかったようですが、世界遺産となり、多数の観光客が訪れるようになって多額の寄付が集まるようになり、設計も建築方法も格段に進歩があったので、一気に完成が早まったのですね。

サグラダ・ファミリア方式ファンドレイジングとは?

我々の「裏磐梯一法庵プロジェクト」の資金調達も、サグラダ・ファミリアと同じ方式をとります。その二大方針は以下の通り。極めてシンプルな方法です。

① 裏磐梯一法庵プロジェクトの精神に賛同してくださるかたからのご喜捨によって建立。それのみ。日本国内だけではなく、インドや台湾などの海外のかたにも呼びかけます。ご喜捨してくださる方が、これからサグラダ・ファミリア=聖家族=聖なるサンガを構成します。

② 集まった額に応じて、その範囲でできることを少しずつ段階的に進めてゆきます。決して無理はしない。急がない。

では、そもそも喜捨とは何か?
「お布施、寄付、寄進」など様々な用語がありますが、このプロジェクトでは「喜捨」に統一します。喜捨とは、エゴの囚われを捨てて、自分が持っているものを手放して、真理の中へ我が身を投げてゆく、その大きな大きな喜びのことです。喜びが全く無い、強制的な寄付の真反対が「喜捨」です。この喜捨から生まれる無上の喜びを、実際に体感してもらうのが、今回のプロジェクトの大きな目的のひとつです。
それこそが、サグラダ・ファミリア方式ファンドレイジングの核心です。

ファンドレイジングに関するQ & A

ただ、この基本方針だけだと色々誤解が生じるので、これまで寄せられた疑問、質問にお答えします。

Q1:一法庵には内部留保の財産がたくさんあってそれで建設するのですか?

A: いいえ、そういうものは全くないです。

Q2:一法庵にはイーロンマスクさんのような億万長者のパトロンがいるのですか?

A: いいえ、残念ながらいません。

Q3:鎌倉の一法庵を売却してその資金で裏磐梯一法庵を建てるのですか?

A: いいえ、鎌倉一法庵はこれからも大事にしてゆきます。鎌倉と裏磐梯の2カ所体制が、あらゆる意味で最重要です。 

Q4:銀行などから、融資を受けるのですか?

A: いいえ、ローンは組みません。建築資金を金融機関から借り入れることはしません。

Q5:まず、裏磐梯一法庵を建設して、そのあとでかかった費用のご喜捨を受けるのですか?

A: いいえ、それはとても危険です。集まった寄付額で出来る範囲の建設を少しずつ進めてゆきます。

Q6:山下さんの個人的な貯金を使うのですか?

A: いいえ、私は修行僧として生きてきたので蓄えはありません。両親からは、一法庵を相続しただけです。

Q7:一法庵の檀家から喜捨を募るのですか

A: いいえ、一法庵は檀家制度の外なので、檀家と呼ばれる人達はいません。一法庵を支えてくださるのは、一緒に修行するサンガのみです。いわば信仰共同体になってます。

Q8:日本では珍しいお寺の建て方ですが、世界では普通ですか?

A: はい、実はこのやり方でお寺を建てるのが、世界標準です。グローバルスタンダードです。欧米の禅センター、ミャンマーの瞑想センター、インドのリトリートセンターなどが、次々とこのやり方で建設されるのを、私自身が現地で見てきました。欧米、ミャンマー、インドなどの普通の人達によって、現在進行形でたくさんのお寺が建てられています。

日本でも徳川初期に檀家制度(寺請け制度)ができる以前は、このやり方で、多くのお寺が建てられていました。念仏行者、法華衆のひとたちが自分達の信仰のための場所を望み、自分たちの手で建設し、それがお寺になりました。なので、日本でも可能なはずです。世界標準の信仰共同体としてのお寺の建立が、この日本で400年ぶりに復活します。
参考: 仏教は「家の宗教」から「個の宗教」へ向かう――戸松義晴(全日本仏教会理事長)

Q9:このやり方で、業者のひとたちとの関係は大丈夫ですか?

A: はい、どこかの工務店と契約してすべてお任せという形をとってません。施主である私が、個人的に大工さん、水道工事店さん、電気工事店さんなどと個別の契約を結ぶ形なので、問題ないと思います。既に大工さんを初めとする業者の人達とは何回も顔を合わせてます。裏磐梯一法庵プロジェクトを実際に進める、信頼出来る建築業界の人達の輪が広がっています。

これまでに頂いたご喜捨

正式なファンドレイジングが始まる前に、既に数人のひとからご喜捨を受けてます。土地の購入などに使わせていただきました。その総額は約1000万円。ハイエースが一台寄贈されましたが、それを約300万円の価値として計算してます。

これからも、お金の流れはしっかり監査を受けて、すべて透明にしてゆきます。定期的に収支を報告してゆきます。

竣工したときに、ご喜捨いただいた方々のお名前が書かれた「寄進者芳名板」を、坐禅堂に掲示いたします。

現在までの到達点

・約700坪の土地を購入して、登記も完了。隣家との境界線も確定してます。

・電気。東北電力によって4本の電柱が新設され(費用は東北電力が負担)、電線が引かれてます。猪苗代の佐藤電気工事店が担当しています。

・井戸。大塚さく井工業さんにより、掘削工事も完了。約30メートルの地下から水質、水量十分な水を確保できました。

・前田博史一級建築士さんに設計図を書いていただき、建築許可の申請も完了。

・四駆のハイエースで、10人が自由に移動できます。任意保険も税金も完了。

以上、すべての支払いが完了してます。

・解体業者さんからも見積もりがきて、まもなく解体工事もスタート。その解体工事費用の準備もできてます。

解体工事が終わった時点でこうなります。

約700坪の土地が更地になり、電気と水の最重要インフラが整って、10人の移動がハイエースで可能。建築許可も下りてるので、すぐに工事は開始できます。

以上が、現在の状況です。ここからいよいよ建築が始まります。

これからの予定

ご喜捨の集まり具合で三段階にわけて順番に進めてゆきます。

① 基礎を作る。ベタ基礎です。

② 備品以外の建物本体の建築。

③ 備品を購入して完備していく。

備品の例:エアコン FF式ストーブ シャッター 畳み 珪藻土(自分たちで壁塗ります) 家具(机、椅子) 洗濯機 乾太君(ガス乾燥機)冷蔵庫 食器棚 布団 座蒲団 等など。

この備品に関しては、個別のご喜捨の募集を計画しています。たとえば畳1枚分のお布施など。畳の裏に、寄進者のお名前を入れます。「〇〇様寄贈」のように。

④ 浄化槽の設置。
合併浄化槽(がっぺいじょうかそう)の10人槽(二世帯用)を、建物完成後に設置することで、実際の生活ができるようになります。

福島リトリートのファンドレイジングに関する法話

6月2日〜6日、民宿湯流里で、毎年恒例の福島リトリートが行われました。そのなかで今回のファンドレイジングに関する率直な質問、疑問が参加者からでました。まとめてリトリートの中の法話のなかでお答えしました。以下からお聞きください。
22/06/05 サグラダ・ファミリア方式ファンドレイジングとは?

竣工はいつ?

「裏磐梯一法庵はいつ完成するのですか?」と、よく聞かれます。正直にお答えすると「我々にもわかりません」となります。

失敗したところでやめてしまうから失敗になる。
成功するまで続ければ、それは成功になる。
松下幸之助 

この松下幸之助翁の言葉をどうぞ参考にしてください。我々も裏磐梯一法庵が完成するまで、決して諦めずに、粘り強く続けますので、必ず成功するでしょう。ただ竣工がいつになるかは、我々にもわかりません。未来は予測もコントロールもできないから。

皆さまからのご支援を重ねてお願いいたします。

ご喜捨のお願い

裏磐梯一法庵建立プロジェクトの理念に賛同し、一緒に「最後の希望の場所」を建設してゆきたいと思われるかたは、是非ご支援くださいませ。支援の方法は、今後は多種多様になりますが、まずは建設資金のご喜捨をいただけると有り難いです。

ご喜捨の方法

ご喜捨の方法をいくつか用意しました。ご自分に無理のない方法をお選び下さい。

ご送金時の手数料にについて
なるべく手数料がかからないATMを利用する方法を用意しましたが、どうしてもATMの使用が難しいと感じるかたは、多少手数料かかりますが、郵便局や銀行の窓口でも送金できます。
領収書について
  • 郵便振替: ATMから発行されるご利用明細票が領収書になります。
  • 銀行振込: ATMから発行されるご利用明細が領収書になります。
鎌倉一法庵及び各地の瞑想会場に設置している「裏磐梯一法庵建立の募金箱」に直接ご喜捨ください。お布施の袋にお名前、ご住所を書かれても、匿名のままでも結構です。
全国の郵便局のATMから、一法庵の振替口座番号が記載された専用の振替用紙を使って、ご入金いただけます。入金時の手数料はこちらです。
通帳・カード 現金
無料 110円

振替用紙は各地のリトリート会場などでお配りしていますが、 ご希望の方には郵送いたします。 こちらの連絡先にメールで、ご住所、電話番号、お名前を記入の上、お申し込みください。すぐにお送りします。

連絡先

ATMの操作方法
ATMでご送金の操作をする際は、振替用紙に、金額、お名前、ご住所、電話番号などをご記入の上、以下の順番で行ってください。振替用紙に何か我々に伝えたいメッセージを書かれると、一法庵まで届きます。

ATM画面の「ご送金」をクリック → 「払込書でのご送金」をクリック → 振替用紙を入れる → 機械が読み取る → 指示に従い入金 → おつりを受け取る
※ATMからご利用明細票が発行されますので、そちらが領収書になります。

ゆうちょ銀行をご利用の方は、次の方法でご喜捨いただけます。
郵便局のATMで、ご自分の口座から通帳またはカードを使って、一法庵の振替口座(当座)にお振込いただけます。
ゆうちょダイレクトをご利用のかたは、ご自分のパソコンやスマホから直接、一法庵の振替口座(当座)にお振込みいただけます。

一法庵の振替口座(当座)はこちらです。恐れ入りますが振込手数料100円をご負担願います。
ゆうちょ銀行以外の銀行をご利用の方は、次の方法でご喜捨いただけます。
・ご自分が利用している銀行のATMで、通帳とカードを使ってご自分の口座から、一法庵の振替口座(当座)にお振込みいただけます。
・スマホのアプリやパソコンから、一法庵の振替口座(当座)に直接、お振り込みいただけます。

一法庵の振替口座(当座)はこちらです。恐れ入りますが振込手数料をご負担願います。
※「預金種目」には「当座」をご指定ください。
ネット銀行をご利用の方は、ネット上でご自分の銀行の口座から以下の一法庵の振替口座(当座)にお振込みいただけます。恐れ入りますが振込手数料をご負担願います。
※「預金種目」には「当座」をご指定ください。

名誉開基について

<石原葉子画伯による母の肖像画>

・鎌倉 一法庵   開基   一法庵殿 基真良哲大居士 (山下良章)

・裏磐梯 一法庵  名誉開基 一法院 円優妙盛大姉 (山下盛子)

お寺を建立するとき、高徳な僧侶に最初の住職になっていただきます。そのかたは「開山(かいざん)」と呼ばれます。鎌倉一法庵の開山は、良寛詩研究などで高名な飯田利行博士です。そして実際の建設資金を提供するひとを「開基(かいき)」と呼びます。鎌倉の一法庵の開基は私の父、山下良章です。戒名は一法庵殿基真良哲大居士。

今回の裏磐梯一法庵は、多くのかたのご喜捨によって建立されるので、特定の開基はいません。ただし「名誉開基」のような象徴も必要でしょう。私の母である山下盛子、一法院円優妙盛大姉にその役を担ってもらおうと思います。母こそ私のこれまでの活動の一番の理解者であり、支援者だったので。母の写真が、そのまま私の活動記録にもなっています。

<安泰寺での得度式> 1983年4月8日。藤田一照さんと私の出家得度式。前列右の二人が、私の両親。左のお二人が一照さんのご両親。
<鎌倉一法庵の地鎮祭> <鎌倉一法庵の地鎮祭> 1985年5月10日の地鎮祭。右端に父、山下良章がいます。その年の11月に落慶法要をしました。
<ヴァレー禅堂での朝食> 1989年9月11日。親友の鬼塚高麗子さんと、ヴァレー禅堂訪問。
<パオセヤドーへのお布施> 2002年11月10日。両親がミャンマーを訪問。ヤンゴン滞在中のパオセヤドーへ法衣のお布施。

<安泰寺での得度式>
<鎌倉一法庵の地鎮祭>
<ヴァレー禅堂での朝食>
<パオセヤドーへのお布施>

お問い合わせ

<建立プロジェクト事務局> 代表 山下 良道

住所:〒248-0024
   神奈川県鎌倉市稲村ヶ崎1-9-32 一法庵
電話番号:080-4154-3637(山下携帯)
     0467-25-3637(固定)
メールアドレス:sudhammacara@gmail.com

なるべくメールでお問い合わせください。